薇姐便民平台

 找回密码
 立即注册
搜索
热搜: 活动 交友 discuz
查看: 1634|回复: 1

滨州新建四个小区:规划方案公布

[复制链接]
发表于 2022-8-11 21:15:00 | 显示全部楼层 |阅读模式 | 来自山东
滨州市建大壹号居住小区规划设计方案总平面图公布

ZXn7S6eFc33D3XAs.jpg




Z7k5D7M7WM5qF7yW.jpg




tmmm5Ztd1LzSVVfT.jpg




滨州市海通鹊水蓝庭项目优化设计方案总平面图

md4Zrj3zOyMj4NBA.jpg




jllPBz56aL5h2b6e.jpg


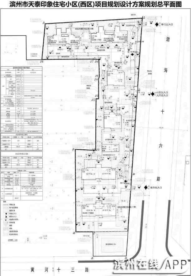
滨州市天泰印象住宅小区(西区)项目规划设计方案总平面图公布

s467uq9zUKIxowS7.jpg




JkaSJ9kz9ZR9EVoO.jpg




滨州市蒲台古城1#2#3#4#5#及S1调整规划方案平面图公布

FIy90KHHcbBw1Iqi.jpg

0

主题

263

回帖

920

积分

高级会员

Rank: 4

积分
920
发表于 2022-8-12 20:03:00 来自手机 | 显示全部楼层 | 来自山东
多少钱一平啊,我买不买得起啊来自: Android客户端
回复

使用道具 举报

您需要登录后才可以回帖 登录 | 立即注册

本版积分规则

QQ|小黑屋|薇姐便民平台 ( 鲁ICP备14018217号 鲁公网安备 37160202000169号 )

鲁公网安备 37160202000169号

鲁公网安备 37160202000169号

GMT+8, 2025-12-20 09:08 , Processed in 0.108735 second(s), 26 queries .

Powered by Discuz! X3.4

© 2001-2023 Discuz! Team.

快速回复 返回顶部 返回列表